Vente
10 371€ TTC livré



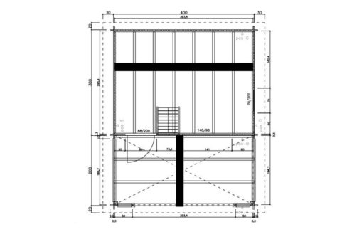
▪ Surface : 12m²+ 8m² terrasse + mezzanine 8m²
▪ Madriers de : 45 mm,
▪ Dimensions: 400 x 500 cm (l/L)
▪ Débords de toit: Av/Ar = 20 cm, D/G =30 cm
▪ Hauteur cotés: 228 cm
▪ Hauteur faitière: 358 cm
▪ Pente de toit: 24°
▪ Porte: 88 x 200 cm
▪ Fenêtre: 60 x 60 cm O/B, 140 x 98 cm O/B, 70×200 cm Fixe
▪ Fenêtres en double vitrage 4/16/4
▪ Plancher: 21mm
Option de la tiny house Ewa:
Ce chalet nécessite 14 paquets de bardeaux vert, rouge ou noir
Prix Livré avec Déchargement sur place
Ce chalet est totalement modifiable
——
La Tiny House Ewa est conçue pour offrir un espace de vie fonctionnel, durable et esthétique, idéal pour une résidence secondaire, un espace de vacances ou un petit habitat fixe en harmonie avec la nature. Avec ses dimensions compactes et ses finitions soignées, cette maison en bois massif répond aux attentes des amateurs de simplicité et de confort.
Les grandes fenêtres en double vitrage 4/16/4 apportent une luminosité naturelle optimale et une isolation performante. La porte de 88 x 200 cm facilite l’accès, tandis que les fenêtres de différentes tailles (60 x 60 cm, 140 x 98 cm, 70 x 200 cm) offrent une ventilation efficace et une vue agréable sur l’extérieur.
Le plancher de 21 mm garantit une stabilité et une bonne isolation du sol. La structure en madriers assure une excellente résistance dans le temps, tout en étant conçue pour limiter l’entretien.
La tiny house Ewa est entièrement modifiable selon vos préférences, hauteur, longueur, largeur, épaisseur, etc…. Vous pouvez par exemple choisir différentes options pour l’aménagement intérieur ou extérieur. Son cadre fixe en fait une installation durable, adaptée à un usage à long terme dans un environnement stable.
Ce chalet est livré avec déchargement sur place. Le prix inclut la livraison. Des options supplémentaires peuvent être proposées pour optimiser votre aménagement intérieur ou extérieur.
La tiny house Ewa offre un espace de vie compact, solide et modulable, parfaitement adaptée à un usage résidentiel fixe. Son design simple mais efficace, associé à ses matériaux de qualité, en font une solution idéale pour ceux qui cherchent un petit habitat en bois durable, sans compromis sur le confort.
Plan:
Télécharger le plan
Chalet en bois BLOIS 40m2 824 x 444…
31 270€ TTC livré
Habitation Légère de Loisir (HLL) de 21,5 m2…
17 840€ TTC livré
Chalet en bois BRISTOL 20m2